Rustico in vendita

Castellammare Del Golfo, Contrada Fraginesi
€ 350.000
Prezzo aggiornato
6 locali 6 locali
540 Mq 540 Mq
1 bagno 1 bagno

Rustico in vendita

Castellammare Del Golfo, Contrada Fraginesi

Descrizione annuncio

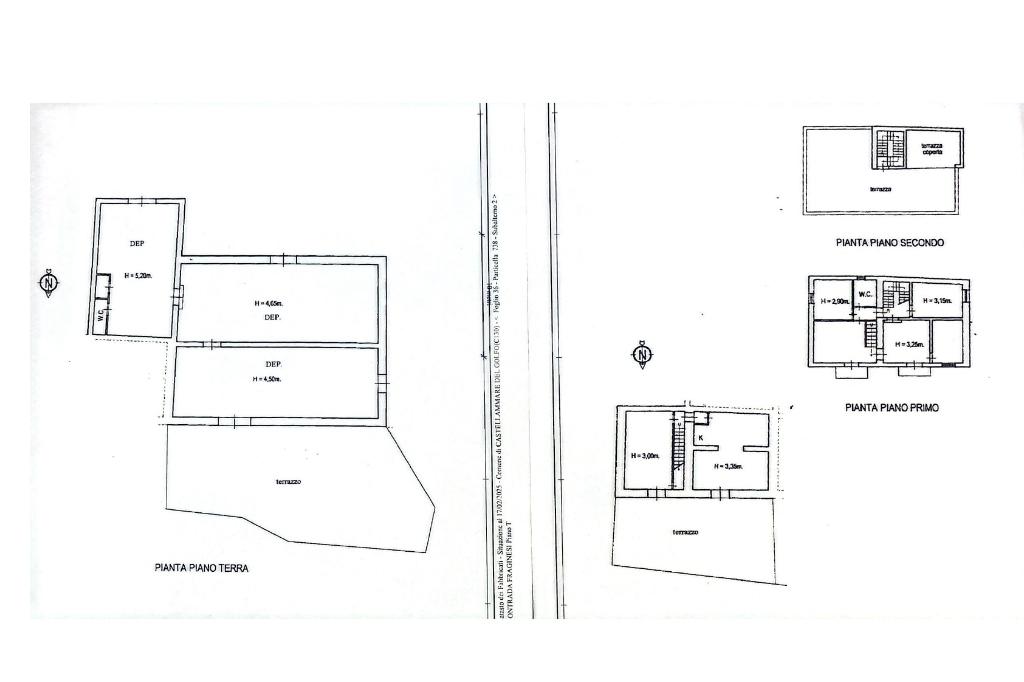
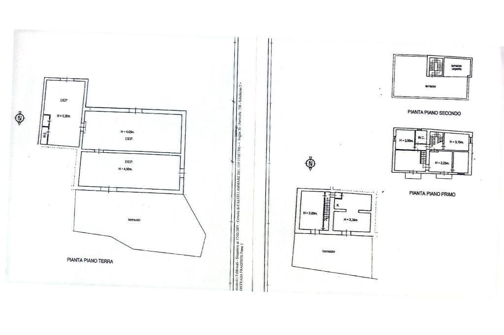
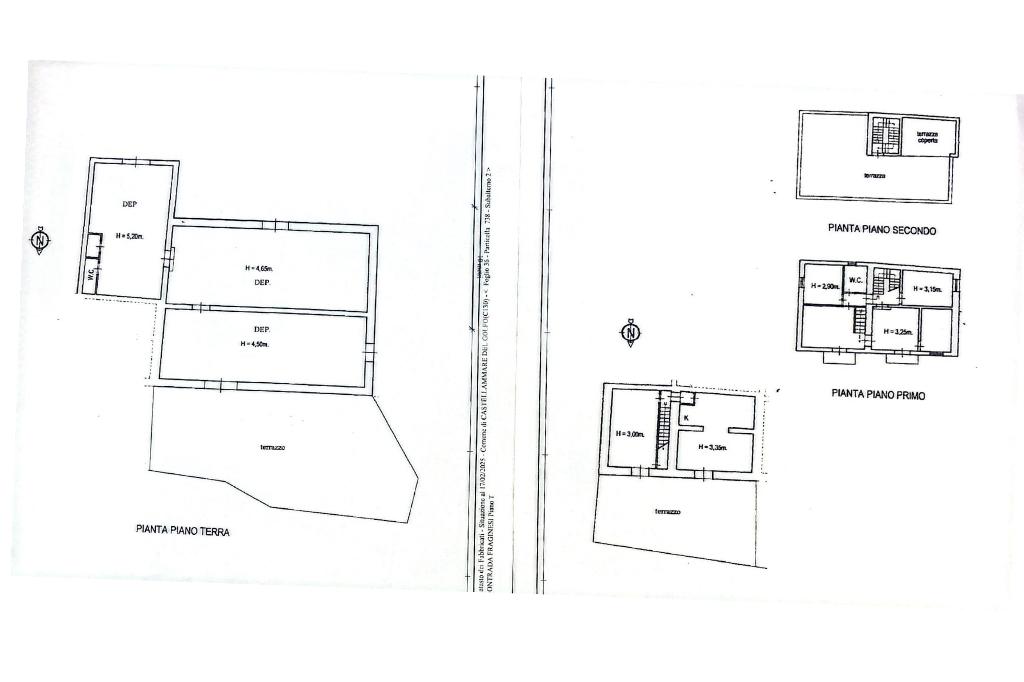
Villa indipendente in Contrada Fraginesi, di circa 540 metri quadrati.

L’immobile, da ristrutturare, si sviluppa su due livelli e dispone al piano terra di una cucina, soggiorno e un bagno, al primo piano troviamo tre camere da letto e un bagno.
Limitrofi alla struttura vi sono tre ampi garage.


Completano la proprietà un ampio terrazzo con vista mare, e un terreno di pertinenza di circa 4000 metri quadrati con frutteto e uliveto.

La proprietà si trova in una zona riservata e silenziosa, ma al tempo stesso a pochi minuti d’auto da Scopello, Guidaloca e dalle splendide calette della Riserva Naturale dello Zingaro.

È possibile visionare l’immobile tutti i giorni previo appuntamento telefonico al nostro numero fisso o inviando un messaggio tramite servizio WhatsApp.

Il nostro franchising mette a disposizione dei clienti, su richiesta, un consulente dedicato alla mediazione creditizia e assicurativa.
Contattateci per una consulenza gratuita e scoprite come valorizzare al meglio questa proprietà dal grande potenziale.

Mostra tutto

Nelle vicinanze

Negozi Negozi
Pane Cunzato
1,9 Km
Ristoranti Ristoranti
Pizzeria and Restaurant
2,5 Km
Mostra tutto

Caratteristiche

Rif.:
61130713
Piano:
2 di 2 (Piano basso)
Posti auto:
4
Balconi:
1
Terrazzi:
1
Camere da letto:
3
Mostra tutto
Prezzo Prezzo
€ 350.000
Prezzo box Prezzo box
€ 1
Rata mutuo Rata mutuo
€ 1.650 / mese
Spese annue Spese annue
€ 1
Proponi il tuo prezzoProponi il tuo prezzo

Classe Energetica

G
G
G
G
G
G
G
G
G
EP globale rinnovabile:
175.00 kW h/m² anno
Anno di costruzione:
1921
Riscaldamento:
Autonomo
Tipo impianto:
Ad aria
Tipo alimentazione:
Aria

Prezzo ridotto di €1 (6%%)

Ti interessa visionare l'immobile?

Fissa un appuntamento  Fissa un appuntamento

Richiedi informazioni

Clicca su Leggi per aprire l'informativa
* Questi campi sono obbligatori

Calcola il tuo mutuo

Semplice e senza impegno
Anticipo

( % )
Mutuo

( % )

pochi semplici passi

inserisci i tuoi dati
Questionario completato
Grazie per aver richiesto un appuntamento senza impegno con un nostro Consulente del Credito e Assicurativo.

Hai inserito correttamente tutti i dati necessari e a breve riceverai una e-mail con un link da convalidare per inviare i tuoi dati.
Affiliato
Castellammare Casa Srl
Corso Giuseppe Garibaldi, 341 91014 Castellammare Del Golfo (TP)

Il nostro staff


  • Fabiola Cottone
    Collaboratrice

  • Antonella D' Alcamo
    Responsabile

  • Giovanni Gueccia
    Affiliato

  • Francesca Lorello
    Coordinatrice

  • Liborio Maria Ancona
    Collaboratore
Corso Giuseppe Garibaldi, 341 91014 Castellammare Del Golfo (TP)
Zona: Castellammare del Golfo-San Vito lo Capo
Mostra su mappa
Orari: Lunedi-Venerdi : 09.00-13.00/15:30-19.30 Sab 09:00-13:00
Affiliato
Castellammare Casa Srl
Corso Giuseppe Garibaldi, 341 91014 Castellammare Del Golfo (TP)

2026 Tecnocasa Franchising S.p.A. - P. IVA 08365160152 - Via Monte Bianco 60/A 20089 Rozzano (MI). Ogni agenzia ha un proprio titolare ed è autonoma. Privacy policy | Policy utilizzo | Cookie policy